Eladó családi ház Ács 38 000 000 Ft

Leírás

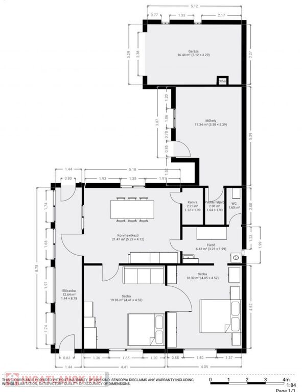
Ácson, 1150 m2-es, két utcafronttal rendelkező telken elhelyezkedő, 82,7 m2- es lakótérrel (konyha-étkező + két szoba), ezen felül, műhellyel, picével, tároló helyiséggel, garázzsal rendelkező, tégla építésű, gáz központi fűtéses lakóház eladó.
Ár: 38.000.000,-Ft
Érd.: 06-20/9-966-669

Eladó Ács csendes, rendezett utcájában ez a kiváló adottságú, téglaépítésű családi ház, amely 1150 m²-es telken helyezkedik el. Az ingatlan ideális választás mindazoknak, akik nyugodt környezetben szeretnének élni, ugyanakkor fontos számukra a kiváló infrastruktúra és a jó közlekedés.
Az 1150 m²-es két utcafronttal rendelkezik, így két oldalról is megközelíthető
Az épület alaprajza a fotók között megtalálható.
A lakóház 82,7 m2 alapterületű, ahol az előszobán kívül konyha-étkező, 2 szoba, fürdőszoba és kamra kapott helyet.
A lakótér alatt 33,5 m2-es pince található, ahol kazánház helyezkedik el, de mellette bőven marad tárolásra alkalmas tér.
A lakóház folytatásában egy 12,6m2-es zöldség tároló és az egyik műhely, ami 17 m2-es és 3m-es belmagassággal rendelkezik.
A műhely mellett 16,4 m2-es garázs található, felette pedig egy hobby szoba.
A másik műhely a lakóháztól távolabb helyezkedik el, 31,6 m2-es, 2,8 m-es belmagassággal.
A műhelyek ipari árammal rendelkeznek.

Az épületek 1964 és 1980 között épültek, tégla falazattal, jó statikai állapotban vannak.
A fűtést gázkazán és vegyes tüzelésű kazán szolgáltatja radiátoros hőleadással, a melegvizet pedig villany bojler.
A konyha-étkezőben egy levegő-levegő hőszivattyú (klíma) biztosítja az alternatív fűtési lehetőséget és igény szerint a nyári hűtést.

Ács előnyei:
Ács Komárom-Esztergom vármegye egyik dinamikusan fejlődő kisvárosa, Győr és Komárom között, az M1-es autópályától alig pár percre.
A település folyamatos fejlődésének köszönhetően Ácson egyre több munkahely válik elérhetővé az ipari park bővülése miatt, így az ingatlan ideális választás lehet azok számára is, akik stabil munkahelyet keresnek a közelben.
A város kiváló választás családoknak és ingázóknak egyaránt: óvoda, iskola, orvosi rendelő, bevásárlási lehetőségek és vasútállomás is a közelben. A környék nyugodt, barátságos lakóövezet.

A vásárláshoz teljes körű hitel ügyintézést biztosítunk!

Családi ház részletei

Ár: 38 000 000 Ft
Méret: 108 négyzetméter
Azonosító: 11572721
Irodai azonosító: 122630
Cím: Ács
Telek: 1151 négyzetméter
Ingatlan állapota:
Jelleg: családi ház
Építőanyag: Kérdezzen rá a hirdetőtől »
Fűtés jellege: Cirkó
Egész szobák: 2

Egyéb jellemzők

  • Terasz