Eladó ipari ingatlan Győrladamér 192 700 000 Ft

Leírás

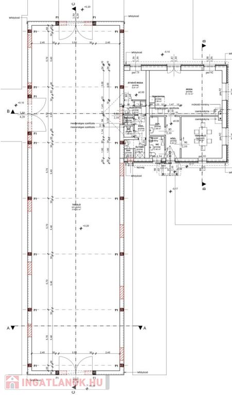
Győrladaméron modern, ipari környezetben, 8.091 m2-es telken elhelyezkedő, 568 m2-es, felépítmény, (356 m2 csarnok, műhely, 45 m2 műhely, valamint 107 m2 iroda és szociális részek, 60 m2 tároló) eladó.
Ár: 192.700.000,-Ft
Érd.: +36-20-36-44-444

Az épület magába foglal egy csarnokot, műhelyt, tárolót és iroda/szociális részt.
Az ingatlan a Győrladaméron található a főút szomszédságában Győr városától mindössze 10 km-re. Győr a hatodik legnagyobb magyar város közel 130.000 fős lakossággal.
Széles spektrumon helyezkedik el a jelen lévő gyártó cégek tevékenysége, melyekből az autóipar a kiemelkedő. a kategória legnagyobb és legfontosabb szereplője az AUDI.
INGATLAN ÖSSZEFOGLALÓ:
- Telekméret: 8.091 m2
- Épület összterület: 568 m2
- Raktár csarnok és műhely: 401 m2
- Iroda és szociális részek: 107 m2
- Műhely 45 m2
- Tároló 60 m2
TECHNIKAI INFORMÁCIÓK:
- Padló: simított beton
- Szerkezeti elemek: 38 cm tégla falazat,
- Szigetelt tetőszerkezet
- Hőszigetelt nyílászárók
- 3 db szintbeli kapu (3,50m x 4,20m)
RÉSZLETEK:
- Magasság: 4,90 m,
- Melegvíz: Bojler
- Igény esetén a terület bővíthető
- Murvás 1500 m2-es kialakított parkoló, rakodóterület
KÖZMŰVEK:
- Áram
- Víz
- Csatorna:
ELHELYEZKEDÉS:
- AUDI: 15 km
- Győr központ: 10 km
- Budapest: 101 km
- Bécs: 123 km
- Pozsony: 79 km

Ipari ingatlan részletei

Ár: 192 700 000 Ft
Méret: 484 négyzetméter
Azonosító: 11415514
Irodai azonosító: 113215
Cím: Győrladamér
Ingatlan állapota: Átlagos
Jelleg: egyéb