Kiadó ipari ingatlan Győr 845 000 Ft

Leírás

LEGYEN ÖN AZ ELSŐ BÉRLŐ!!!

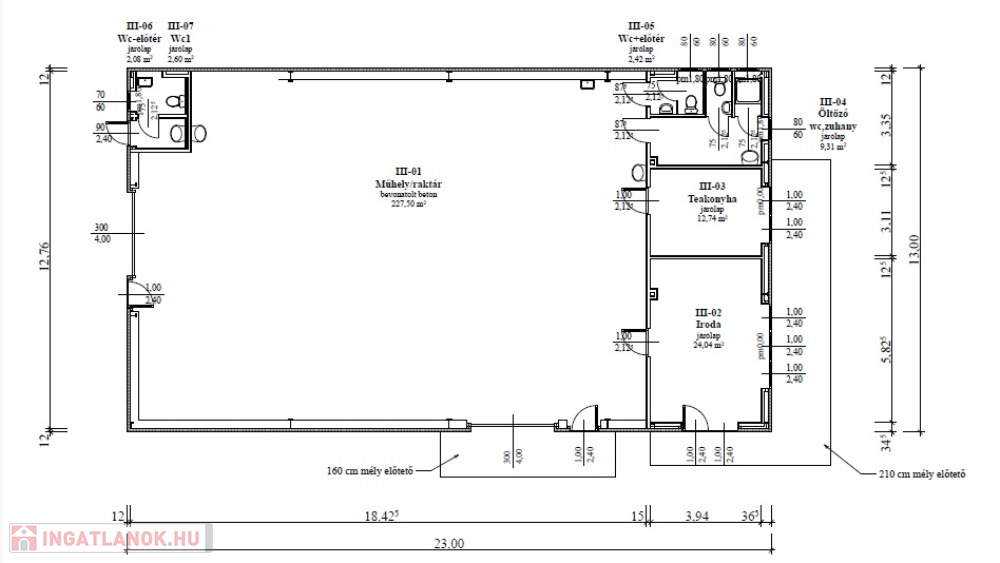
Győr-Sziget-Újváros könnyen megközelíthető részén, az M1-es autópályától pár perces autótávolságra, nagyszámú parkolási lehetőséggel bíró telken, 227,5 m2-es raktárból/műhelyből, 24,04 m2-es irodából, teakonyhából, szociális egységekből, zuhanyzóból álló, összesen 281 m2-es FŰTHETŐ, modern raktárépület kiadó.

Bérleti díj: 845.000 Ft./hó (7,4 EUR/m2) + ÁFA + 2 havi kaució
Érd.:+36-20/573-76-77


Az új építésű SZIGETELT épület műszaki és egyéb jellemzői a következők:

- nettó belmagassága 6 m,
- ipari kapuval ellátott, melynek mérete 3 m x 4 m,
- fűtését, hűtését hőszivattyú látja el, befúvó hőleadóval
- ipari áram,
- vízvételi lehetőség biztosított,
- PANORÁMÁS üvegportál, előkerttel,
- igény esetén, további 3 db iroda kialakításának lehetősége, stb.

A terület lehetővé teszi kedvező díjszabás mellett elektromos autótöltés feltételét.

Ipari ingatlan részletei

Ár: 845 000 Ft/hónap
Méret: 281 négyzetméter
Azonosító: 11520480
Irodai azonosító: 118547
Cím: Győr
Ingatlan állapota: Átlagos
Jelleg: egyéb